您的当前位置:网站首页 > 新闻中心 > 行业新闻 > 石灰破碎粉磨设备汇总介绍
发布时间:2015-03-31 10:02:07
更新时间:2021-05-26 10:02:07
作者:RAYBET雷竞技入口
欢迎
在线咨询
获取报价清单及产品资料,赚钱从这里开始、期待您的来厂参观!
石灰破碎粉磨设备
由于现代工业对于石灰的加工有着不同的要求,尤其是对石灰的粒度要求各有不同,所以,石灰出厂前需要进行破粉碎加工,以保证满足工业对石灰不同粒度的需要。
目前,石灰的破粉碎加工设备常用的有环锤式破碎机、笼型粉碎机、管磨机、悬辊式磨粉机和压球机。
*1、环锤式破碎机 *
.jpg)
该机是带有环锤的冲击转子式破碎机。当无聊进入破碎机后,首先受到岁转子告诉旋转并能绕锤销自转的环锤的冲击作用而破碎,呗破碎的物料同时从环锤处获得动能,高度地冲向破碎板,受到二次破碎,然后落到筛板上,受到环锤的剪切、挤压、研磨及物料和物料直接的相互作用进一步破碎,并有过筛孔排出。出料粒度的调节是通过更换不同规格的筛板来实现的。转子与筛板直接的间隙,可根据需要通过调节机构进行调节。环锤式破碎具有电耗小,调节方便,噪音低等优点。缺点是当箅孔较小时,箅条容易堵塞。主要结构如下图。

1-主轴;2-转子;3-锤头;4-机架;5-破碎板;6-筛条
*2、笼型粉碎机 *
(1).jpg)
该机的主要粉碎部件是由两个相对回转的笼子组成,每个笼子都有一个固定在轮上的钢盘,垂直于钢盘按同心圆固装着2-3圈的钢棒笼型粉碎机是利用回转的钢棒对物料的撞击作用而将其粉碎。物料由料斗进入两个彼此相对旋转的笼子,物料首先落到最里圈的钢棒上,受到钢棒猛烈冲击作用而被粉碎,并在离心力的作用下被抛向另一圈钢棒上,实现再次粉碎,如此循环,直到物料通过所以的各圈钢棒为止,被粉碎的物料落到笼外机壳的底部卸出。结构如下图。

1,7-转动轴;2-装料斗;3,5-转笼;4,6-轮毂;8-机架;9-螺杆;10-螺母
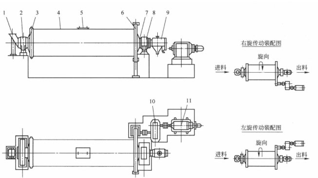
3、管磨机
.jpg)
主要由筒体部、卸料部、主轴承和转动装置等部分组成,主要用于石灰的细磨。用格子板将管磨机分成两个或三个仓室,多仓磨的优点是物料受到大钢球粉碎,随着粒度逐渐变细受到中钢球、小钢球或者刚段的粉碎,从而产生较好的粉碎效果。结构如下图。

1-进料口;2,8-主轴承;3,7-端盖;4-筒体;5-入孔;
6-大齿轮;9-卸料筒;10-减速机;11-电动机
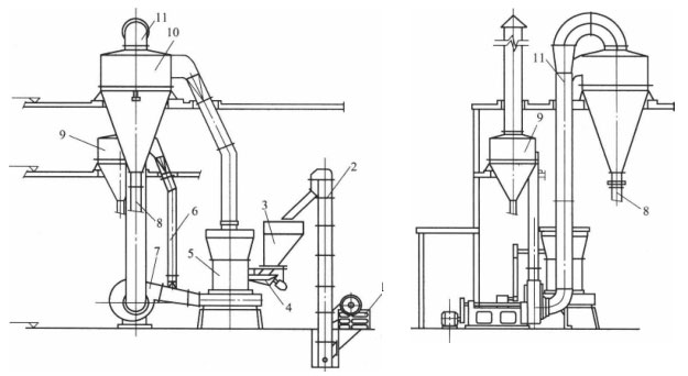
4、悬辊式磨粉机
.jpg)
下图为其布置图。悬辊式磨粉机在粉磨过程中,物料由颚式破碎机初碎后,经斗式提升机输送到贮料斗,再经过给料机送入研磨室进行研磨,研磨后的粉料呗鼓风机吹到研磨室上方的分几期进行分级。粒度较大的颗粒仍然落入到研磨室重磨,粒度合乎要求的物料随同风流进入大旋风收集器,再经出料管排出即为成品。

1-颚式破碎机;2-斗式提升机;3-贮料斗;4-给料机;5-研磨室;6-废气管;7-鼓风机;
8-出料管;9-小旋风收集器;10-大旋风收集器;11-回风管
一般来说,由于石灰的硬度较低,粉碎时比较困难,所以对石灰的磨细几乎都要用到管磨机和悬辊式磨机,管磨机主要用于竖窑石灰的细磨,而悬辊式磨机则适用于制造轻烧石灰粉。我公司专业生产各种石灰粉碎设备,欢迎前来咨询选购。
![]()
![]()
在线留言想了解价格?产量?型号?售后?请留言,我们第一时间为您回复